2-Raum Wohnung in zentrumsnaher Lage - 1. OG mit Aufzug und Balkon (Wohnungen Plauen)
Land:
DEU
Strasse:
Burgstraße 49
PLZ:
08523
Ort:
Plauen
Adresse anzeigen:
1
Etage (im Haus):
1
Kaltmiete:
326,00 €
Warmmiete:
526,00 €
Nebenkosten:
200,00 €
Kaution:
978
Wohnfläche:
50,18 m²
Ihre Objektnr.:
BURG49-03
Heizungsart:
Zentralheizung
Fahrstuhl:
Personen
Befeuerung:
Gas
Boden:
Fliesen
Bad:
Dusche
Zimmer:
2
Schlafzimmer:
1
Badezimmer:
1
Baujahr:
1994
Art:
Verbrauch
Gültig bis:
2029-01-13
E-Verbrauchskennw.:
70.00
EP inkl. Warmwasser:
ja
Wertklasse:
B
Baujahr:
1994
Jahrgang:
2014
Gebäudeart:
wohn
Das Wohn- und Geschäftshaus in der Burgstraße 49 wurde lt. Energieausweis 1994 erbaut und befindet sich unweit des Plauener Zentrums.
Das Objekt ist voll unterkellert und mit einem Fahrstuhl ausgestattet.
Unter dem Kellergeschoss befindet sich eine Tiefgarage.
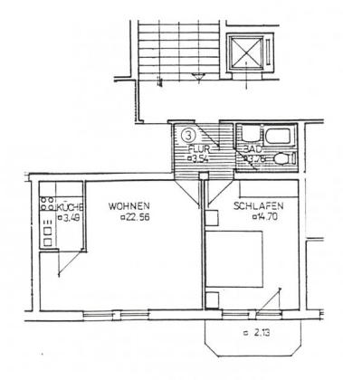
Die 3-Raum Wohnung im 1. Obergeschoss der Immobilie ist lt. Planung ca. 50,18 m² groß und teilt sich wie folgt auf:
- Flur
- Schlafzimmer
- Küche
- Wohnzimmer
- Badezimmer
- Balkon
Alle Räume sind über den Flur zu erreichen.
Das Badezimmer ist innenliegend.
Zur Wohnung Nr. 03 gehört ein Mieterkeller mit der Nr. 03.
Die Große Kreisstadt Plauen mit ca. 66.000 Einwohnern ist ein Oberzentrum im Südwesten des Freistaates Sachsen und die Kreisstadt des Vogtlandkreises. Zugleich ist sie die größte Stadt des sächsischen Vogtlandes und fünftgrößte Stadt im Freistaat. Sie liegt verkehrsgünstig an der Nahtstelle zu Bayern, Böhmen und Thüringen, im Schnittpunkt der Autobahnen A9 und A72.
Plauen ist geprägt von einer großen Branchenvielfalt. Es gibt u.a. mittelständische Firmen des Maschinen-, Stahl- und Metallbaus, der Elektrotechnik / Elektronik, des Fahrzeugbaus und der Fahrzeugausrüstungen, Druckerzeugnisse, Nahrungs- und Genussmittel sowie die Textilerzeugnisse.
Diese Branchenvielfalt ermöglicht eine große Flexibilität und ist Voraussetzung für eine weitere innovative wirtschaftliche Entwicklung der Stadt.
Die Stadt Plauen ist kulturelles Zentrum des Vogtlandes. Bewohnern und Besuchern der Region steht ein reichhaltiges Angebot an Ausstellungen, Veranstaltungen und Konzerten zur Auswahl.
Regional bedeutsame Märkte und Feste, wie das jährlich im Juni stattfindende Plauener Spitzenfest, der Europäische Bauernmarkt, die Open-Air-Spektakel des Theaters Plauen-Zwickau sowie die Nacht der Museen haben Tradition in Plauen.
Umgeben von Natur-, Landschaftsschutz- und Naherholungsgebieten sowie den Stauseen Pirk und Pöhl bietet Plauen eine malerische Landschaft.
Das Objekt befindet sich nur etwa 300 m vom Stadtkern Plauen entfernt.
Alle Einrichtungen des täglichen Bedarfs befinden sich in unmittelbarer Nähe.
Supermärkte, wie zum Beispiel ein Edeka und ein Denns BioMarkt, sind in nur wenigen Gehminuten (2-3 Minuten) erreichbar.
Der ,,Spielplatz Burgstraße" ist fußläufig nur 1 Minute entfernt.
Auch eine Grundschule, die ,,Erich-Ohser-Grundschule Plauen" (4 Minuten zu Fuß), befindet sich in unmittelbarer Nähe.
Die Haltestelle ,,Dittrichplatz" ist ebenfalls nur 5 Minuten zu Fuß entfernt.
Viele Sehenswürdigkeiten der Stadt sind in kurzer Zeit zu erreichen.
So zum Beispiel das angesagte ,,Malzhaus" (8 Minuten zu Fuß), die Stadt-Galerie mit vielen Möglichkeiten zum Shoppen (9 Minuten zu Fuß), der schöne Marktplatz mit den beeindruckenden Klostertürmen, der Stadtverwaltung und dem Rathaus (8 Minuten zu Fuß).
Als weitere Attraktion gilt der Freizeitpark Syratal mit einer Parkeisenbahn, welche ebenfalls fußläufig nur 12 Minuten entfernt liegt.
Dieses Angebot entspricht noch nicht Ihren Wünschen...?
Besuchen Sie auch unsere Homepage mit vielen weiteren Wohnungsangeboten oder sprechen Sie uns persönlich an. Wir präsentieren Ihnen gern weitere Objekte.
Alle Angaben beruhen auf Aussagen Dritter und erfolgen ohne Gewähr. Exposé © Immobilienbüro Kühn
Vogtlandkreis ist die Oberkategorie in der diese Immobilie gelistet wird samt Immobiliensuche. Die Überschrift für diese Immobilie ist 2-Raum Wohnung in zentrumsnaher Lage - 1. OG mit Aufzug und Balkon. Das hier vorliegende Exposé ist bei Immobilienfrontal unter der Kategorie Plauen abgespiechert. Das dieser Immobilie zugeordnete Bundes-Land ist Sachsen. Der Anbieter Immobilienbüro Kühn GmbH & Co. KG Ansprechpartner Wolfgang Kühn, Jahnstraße 17 in 08058 Zwickau ist verantwortlich für die Veröffentlichung der Anzeige.
Besucher kamen auf die Seite Wohnungen in Plauen durch folge Begriffe:
Synonyme zur Suche Plauen Wohnungen:
Wohnungen Plauen, Wohnung Plauen, Plauen Wohnung online
Immobilienbüro Kühn GmbH & Co. KG |
|
Wolfgang Kühn |
|
Jahnstraße 17 |
|
08058 Zwickau |
|
Telefon: |
0375282003 |
|
|
|
|
Maklerwebsite: |
|
|
|
|
|
USt.-ID: |
DE152847296 |
|
Handelsregister-Nr: |
HRA 10300 AG Chemnitz |
|
Aufsichtsbehörde: |
Berufsaufsichtsbehörde Stadt Zwickau |
Verbraucherinformation:
Online-Streitbeilegung gemäß Art. 14 Abs. 1 ODR-VO: Die Europäische Kommission stellt eine Plattform zur Online-Streitbeilegung (OS) bereit, die Sie hier finden: https://ec.europa.eu/consumers/odr


